........................A r q u i t e c t o..................................................Godofredo Oscós F.

Si buscas hosting web, dominios web, correos empresariales o crear páginas web gratis, ingresa a PaginaMX
Por otro lado, si buscas crear códigos qr online ingresa al Creador de Códigos QR más potente que existe





Nombre: Casa Porticada
Año de Diseño: 2010 (15 julio)
Maqueta Virtual: 2013 (26 junio)
Estilo: Típico Regional México
Proyecto: Arq. Godofredo Oscós Flores
Terreno: 20.00 m. x 22.00 m.
Superficie de construcción. 226.50 m2.


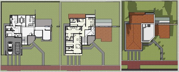
Programa Arquitectónico (18 espacios):
PLANTA BAJA: 1- Jardín Frontal, 2- Pórtico, 3-Cochera, 4- Vestíbulo, 5- Estancia, 6- Estudio1, 7-Estudio2, 8- 1/2 Baño, 9-Comedor, 10-Cocina, 11- Recámara de Servicio, 12- Lavandería, 13- Terraza-Jardín
PLANTA ALTA: 14- Sala de TV, 15- Recámara 1 Principal con baño, 16- Recámara 2 con baño, 17- Recámara 3 con baño.
PLANTA AZOTEAS: 18- Servicios,(Tinaco, tanque estacionario).
 

Descripción: Casa con un programa arquitectónico relativamente corto, pero con amplitud en las zonas, el pórtico a doble altura es el elemento esencial en fachada y a nivel funcional y permite una conexión visual con todos los lugares en planta baja donde se encuentra la mayoría del área habitable. En planta alta sólo cuenta con 3 recámaras pero con una amplitud generosa en espacio, iluminación y ventilación.


                             Fachada Frontal                                                                                                      Fachada Posterior


                                Fachada Lateral Derecha                                                                                     Fachada Lateral Izquierda


                        Planta Baja                                                                  Planta Alta                                                                   Planta Azoteas


                                   Vista Frontal                                                                                                             Vista Posterior


                         Vista Lateral Derecha                                                                                            Vista Lateral Izquierda


                         Vista Aérea Frontal                                                                                                   Vista Aérea Posterior


                 Sección Transversal Vista Frontal                                                                       Sección Longitudinal Vista Lateral Derecha
© 2026 ........................A r q u i t e c t o..................................................Godofredo Oscós F.