........................A r q u i t e c t o..................................................Godofredo Oscós F.

Si buscas hosting web, dominios web, correos empresariales o crear páginas web gratis, ingresa a PaginaMX
Por otro lado, si buscas crear códigos qr online ingresa al Creador de Códigos QR más potente que existe



Nombre: Cubo4.60

Año de Diseño: 2011 (...28 abril)
Ilustraciones 3d: 2015 (...28feb)
Estilo, tipología, influencia: Racionalismo contemporáneo
Proyecto: Arq. Godofredo Oscós Flores
Terreno: 7.00 m x 7.00 m.
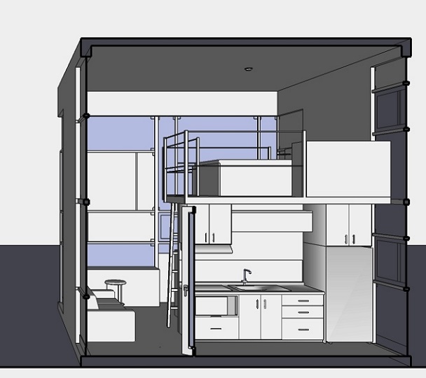
Superficie de construcción. 29.60 m2

Programa Arquitectónico (4 espacios):
PLANTA BAJA: 1- Sala-cocineta, 2- Baño, 3-Lavandería,
PLANTA ALTA: 4-Dormitorio.

Descripción: Se trata de una mini casa cúbica de 4.6 m x 4.6 m x 4.6m. para una o dos personas que puede ubicarse en un pequeño espacio de un patio o jardín posterior de alguna casa aprovechando las instalaciones de ésta.
Para rentar a estudiantes de profesiones creativas que requieren independencia y privacidad.


Fachada Frontal


Fachadas: Posterior, Derecha, Izquierda


Planta


Sección Vista Frontal






 
© 2026 ........................A r q u i t e c t o..................................................Godofredo Oscós F.